Italiano
2 Camere 1 Bagni 1 Box/Posti auto 125 m2
Caratteristiche principali
Codice
V002847
Prezzo
295.000 EUR
Spese condominiali
1.300 EUR
Classe
A++
Locali
4
Mq Box
41
Mq Giardino
100
Altre caratteristiche e accessori
Stato Immobile
Ottimo
Grado
Signorile
Posizione
Centro
Panorama
Vista Aperta
Piano
Piano Terra
Orientamento
Sud Ovest
Totale Piani
Quattro
Lati Liberi
2
Giardino
Privato
Arredi
Possibilità
Tipo Soggiorno
Sala da Pranzo
Tipo Cucina
Semi Abitabile
Riscaldamento
Autonomo
Tipo Riscaldam.
Caldaia
Tipo Impianto
Pavimento
Fonte Energetica
Metano
Acqua Calda
Autonoma
Raffrescamento
Pavimento
Infissi
PVC Doppio Vetro
Serramenti
Ottimo
Persiana
Tapparella PVC
Pavim. Giorno
Parquet
Pavim. Notte
Parquet
Pavim. Cucina
Parquet
Pavim. Bagno
Ceramica
Accessori
Aria Condizionata, Ascensore, Doppi Vetri, Porta Blindata, Tapparelle Elettriche, Video Citofono
ROVERETO CENTRO IN ZONA RESIDENZIALE DI PREGIO
PROPONIAMO:
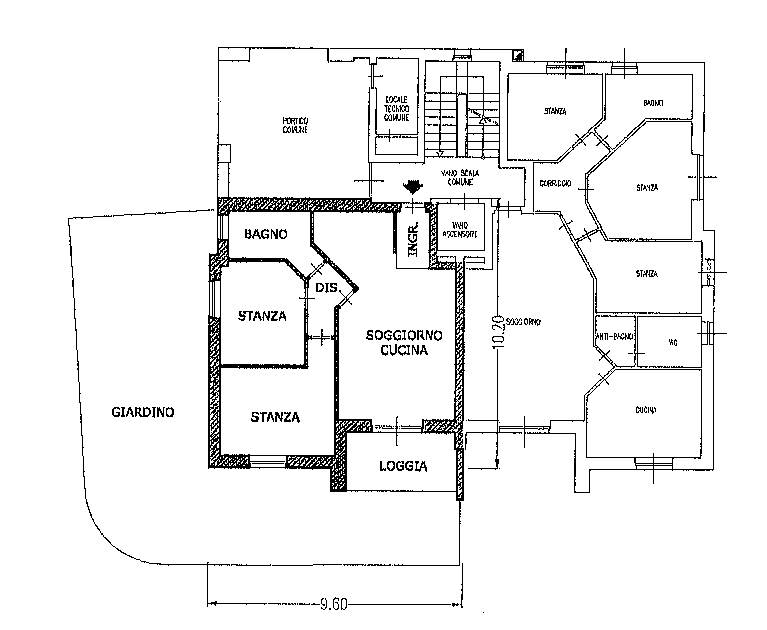
Elegante appartamento al piano terra con ampio GIARDINO di proprietà insistente su due lati.
L' appartamento fa parte di una palazzina realizzata recentemente con tutti i criteri atti e rivolti al risparmio energetico ed è catalogata in Classe -A + -.
L' abitazione è composta da ingresso, ampia zona giorno suddivisa da angolo cottura e salone, due ampie stanze da letto, servizio, La zona giorno è completamente esposta a sud ed ha l' accesso diretto all' ampio giardino.
Riscaldamento autonomo a pavimento, tapparelle elettriche con automatismo. Nell' prezzo è compreso l' arredo di cucina su misura e parte arredo stanza, il tutto di eccellente qualità.
Completa la proprietà un box auto doppio.


Cookie preference