4 Camere 2 Bagni 1 Box/Posti auto 160 m2
Caratteristiche principali
Spese condominiali
1.200 EUR
Altre caratteristiche e accessori
Orientamento
Est Sud Ovest
Tipo Riscaldam.
Caldaia a Condensazione
Infissi
Legno Doppio Vetro
Persiana
Tapparella Metallo
Spessore cappotto (cm)
12
Impianto d’irrigazione
Si
Accessori
Ascensore, Cancello Elettrico, Porta Blindata, Ripostiglio
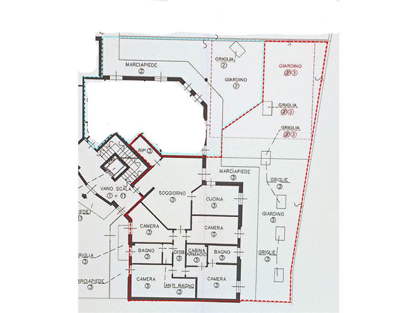
ALA, IN ZONA RESIDENZIALE, NELLE VICINANZE DELLA STAZIONE DEI TRENI E DI TUTTI I SERVIZI, PROPONIANO IN UN PICCOLO CONTESTO CONDOMINIALE, APPARTAMENTO DI GRANDE METRATURA POSTO AL PIANO TERRA CON AMPIO GIARDINO DI PROPRIETA'.
L'APPARTAMENTO E' COMPOSTO DA: INGRESSO, SOGGIORNO GRANDE, CUCINA ABITABILE, QUATTRO CAMERE, DOPPI SERVIZI FINESTRATI, RIPOSTIGLIO.
PREDISPOSIZIONE PER IMPIANTO DI CLIMATIZZAZIONE.
COMPLETANO LA PROPRIETA' UN GARAGE DOPPIO DI 33 MQ, E UNA CANTINA FINESTRATA .
L' EDIFICIO E' DOTATO DI CAPPOTTO ESTERNO REALIZZATO IN TEMPI RECENTI.